Trilocale in vendita

Beinasco, Viale papa giovanni XXIII - Borgaretto
€ 134.000
Prezzo aggiornato
3 locali 3 locali
82 Mq 82 Mq
1 bagno 1 bagno

Trilocale in vendita

Beinasco, Viale papa giovanni XXIII - Borgaretto

Descrizione annuncio

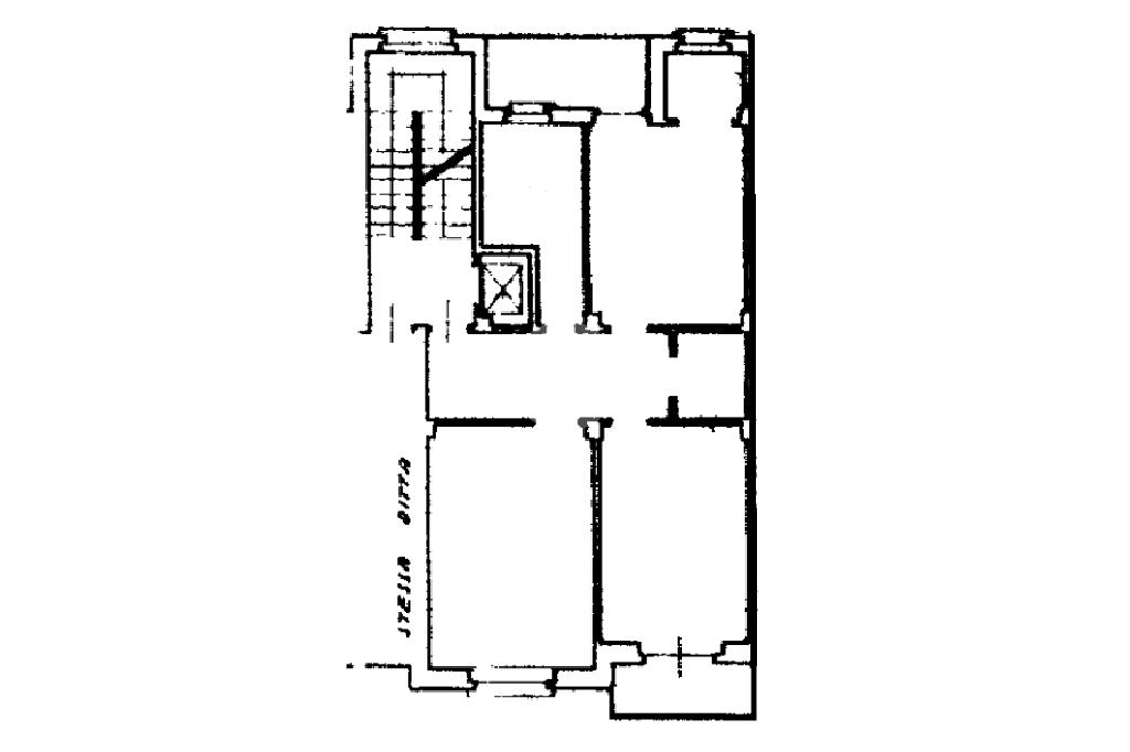
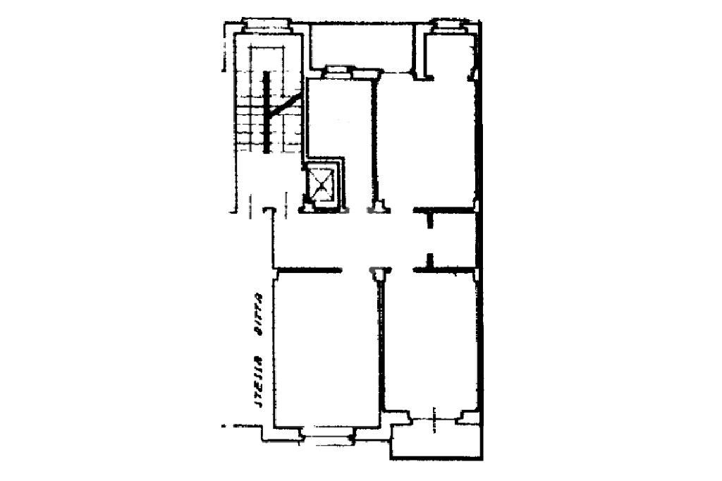
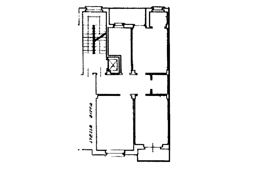
In posizione centralissima, comoda a tutti i servizi, proponiamo un ampio trilocale situato all'ultimo piano di uno stabile dotato di ascensore.

L'ingresso si apre su un accogliente tinello con cucinino, perfetto per la vita quotidiana in quanto si può adattare una parete porta TV, un divano ed un tavolo con quattro sedie. Il tinello ha l'accesso diretto al primo balcone della soluzione con vista aperta sulle montagne.

La zona notte è composta da due camere da letto. La cameretta con balcone privato offre la possibilità di posizionare due letti singoli, una scrivania e l'armadio così da poter ospitare due figli. La camera matrimoniale anch'essa di ampia metratura è resa luminosa dalla presenza di una finestra. Il bagno, ristrutturato nel 2007, è finestrato e dotato di doccia. Completa la proprietà un comodo ripostiglio ed una cantina posizionata al piano sotterraneo.
L' immobile si presenta in ottimo stato grazie agli interventi di manutenzione eseguiti: le porte interne sono in legno, mentre quelli esterni, sostituiti nel 2020, sono con doppio vetro. La facciata della palazzina invece è stata completamente rifatta nel 2024.

L'appartamento è ideale per famiglie o coppie in cerca di una soluzione comoda e funzionale.

Mostra tutto

Nelle vicinanze

Trasporto pubblico Trasporto pubblico
Castello di Mirafiori
Castello di Mirafiori
2,1 Km
Drosso Capolinea
Drosso Capolinea
2,1 Km
Fratelli Bandiera
Fratelli Bandiera
50 m
Borgaretto (P.za Kennedy)
Borgaretto (P.za Kennedy)
190 m
Ricariche auto elettriche Ricariche auto elettriche
Movi Mobility Village | EnelX
540 m
I Viali Shopping Park Nichelino | EnelX
1,8 Km
Scuole Scuole
Scuola Media Statale Antonio Vivaldi
420 m
Scuole
460 m
Scuola Primaria Dante Di Nanni
550 m
Scuola Dell'Infanzia Gatti
560 m
Scuola Primaria "Gaetano Salvemini"
1,5 Km
Farmacia Farmacia
Comunale
280 m
Facci Tosatti
350 m
Farmacia
1,8 Km
Farmacia Comunale
1,8 Km
Ipercoop
2,0 Km
Ospedali Ospedali
Presidio sanitario “Vittorio Valletta”
2,6 Km
Supermercati Supermercati
CRAI
80 m
Conad
280 m
DPiù
1,6 Km
PrestoFresco
1,6 Km
Carrefour
1,7 Km
Negozi Negozi
Mamma Morena
380 m
Carrefour Express
400 m
Il Fornetto
470 m
Il Maggiolino
520 m
Il Club delle Donne
1,6 Km
Bar Bar
Al Diciannove B
490 m
Caffè Villa Reale
1,2 Km
Bar
1,7 Km
Caffè Le Fornaci
2,3 Km
Ristoranti Ristoranti
Ristoranti
180 m
Trattoria Alla Socio
320 m
La Nuova Casita
440 m
Cico
560 m
Osteria 111
580 m
Mostra tutto

Caratteristiche

Rif.:
61121463
Piano:
7 di 7 con ascensore (ultimo Piano)
Balconi:
2
Camere da letto:
2
Arredamento:
Assente
Condizionamento:
Assente
Mostra tutto
Prezzo Prezzo
€ 134.000
Rata mutuo Rata mutuo
€ 622 / mese
Spese annue Spese annue
€ 1.000
Proponi il tuo prezzoProponi il tuo prezzo

Classe Energetica

D
D
D
D
D
D
D
D
D
EP globale non rinnovabile:
97.91 kW h/m² anno
EP globale rinnovabile:
57.05 kW h/m² anno
EP invernale del fabbricato:
EP estiva del fabbricato:
Anno di costruzione:
1967
Riscaldamento:
Centralizzato
Tipo impianto:
A radiatori
Tipo alimentazione:
Metano

Prezzo ridotto di €1 (4%%)

Ti interessa visionare l'immobile?

Fissa un appuntamento  Fissa un appuntamento

Richiedi informazioni

Clicca su Leggi per aprire l'informativa
* Questi campi sono obbligatori

Calcola il tuo mutuo

Semplice e senza impegno
Anticipo

( % )
Mutuo

( % )

pochi semplici passi

inserisci i tuoi dati
Questionario completato
Grazie per aver richiesto un appuntamento senza impegno con un nostro Consulente del Credito e Assicurativo.

Hai inserito correttamente tutti i dati necessari e a breve riceverai una e-mail con un link da convalidare per inviare i tuoi dati.
Affiliato
Immobiliare La Casa Dei Sogni Sas
Via Papa Giovanni XXIII, 9/A 10092 Beinasco (TO)

Il nostro staff


  • Rosy Melania Tambè
    Affiliata

  • Francesca Gaia Brescia
    Collaboratrice

  • Daria De Luca
    Responsabile

  • Laura Fiorini
    Coordinatrice

  • Christian Giuliana
    Collaboratore

  • Maria Iolanda Perno
    Collaboratrice
Via Papa Giovanni XXIII, 9/A 10092 Beinasco (TO)
Zona: Borgaretto-Beinasco
Mostra su mappa
Affiliato
Immobiliare La Casa Dei Sogni Sas
Via Papa Giovanni XXIII, 9/A 10092 Beinasco (TO)

2026 Tecnocasa Franchising S.p.A. - P. IVA 08365160152 - Via Monte Bianco 60/A 20089 Rozzano (MI). Ogni agenzia ha un proprio titolare ed è autonoma. Privacy policy | Policy utilizzo | Cookie policy