Quadrilocale in vendita

Beinasco, Str. Borgaretto - Borgaretto
€ 135.000
Prezzo aggiornato
4 locali 4 locali
147 Mq 147 Mq
1 bagno 1 bagno

Quadrilocale in vendita

Beinasco, Str. Borgaretto - Borgaretto

Descrizione annuncio

Di questa soluzione si vende la nuda proprietà.

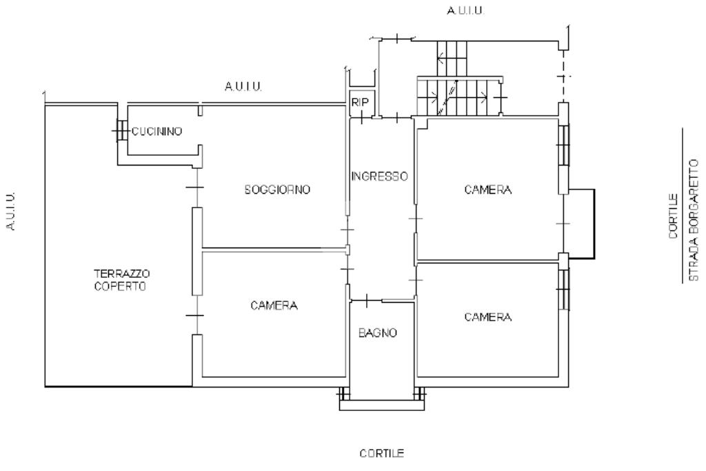
La proprietà è sita in posizione strategica in quanto comoda ai collegamenti con Beinasco centro, Torino e con Orbassano. L'alloggio si trova al primo piano di un contesto di sole quattro famiglie.

L'ingresso disimpegna in modo ottimale gli ambienti e conduce all'ampio soggiorno che può ospitare una grande parete tv con divano angolare con poltrone e libreria. Questo primo ambiente è illuminato da doppia finestra e servito da balcone privato. La cucina è abitabile e può accogliere tranquillamente una cucina completa di elettrodomestici con un tavolo per 6-8 persone. Da questo ambiente si accede all'ampio terrazzo coperto ottimo per pranzi e cene estive oltre che per momenti di relax. Essendo la cucina spaziosa, si potrebbe arredare come soggiorno con cucinino per trasformare il soggiorno nella terza camera da letto.

La zona notte è composta da due camere di generose dimensioni e arredabili sia come camera da letto matrimoniale con letto a due piazze e grande armadio sia come camera in grado di ospitare due ragazzi. Una delle camere è dotata del secondo accesso al terrazzo.

Il bagno finestrato è dotato di tutti i sanitari e della vasca da bagno. Completa il piano un ripostiglio.

Completa la proprietà la cantina.

Mostra tutto

Nelle vicinanze

Trasporto pubblico Trasporto pubblico
Castello di Mirafiori
Castello di Mirafiori
2,5 Km
Drosso Capolinea
Drosso Capolinea
2,5 Km
Borgaretto N.27
Borgaretto N.27
190 m
Borgaretto N.56
Borgaretto N.56
220 m
Ricariche auto elettriche Ricariche auto elettriche
Movi Mobility Village | EnelX
980 m
I Viali Shopping Park Nichelino | EnelX
2,3 Km
Scuole Scuole
Scuole
880 m
Scuola Media Statale Antonio Vivaldi
980 m
Scuola Primaria Dante Di Nanni
1,1 Km
Scuola Dell'Infanzia Gatti
1,1 Km
Scuola Primaria "Gaetano Salvemini"
1,6 Km
Farmacia Farmacia
Comunale
720 m
Facci Tosatti
900 m
Ipercoop
1,6 Km
Équì
1,6 Km
Farmacia
1,7 Km
Supermercati Supermercati
CRAI
640 m
Conad
710 m
Ipercoop
1,6 Km
DPiù
1,7 Km
Banco Fresco
1,8 Km
Negozi Negozi
Mamma Morena
850 m
Carrefour Express
960 m
Il Maggiolino
970 m
Il Fornetto
970 m
Globo
1,6 Km
Bar Bar
Al Diciannove B
990 m
Caffè Villa Reale
1,6 Km
Bar
1,7 Km
Caffè Le Fornaci
2,0 Km
Ristoranti Ristoranti
Ristoranti
730 m
Trattoria Alla Socio
840 m
La Nuova Casita
940 m
Cico
1,0 Km
Osteria 111
1,1 Km
Mostra tutto

Caratteristiche

Rif.:
61152644
Piano:
1 di 2 (ultimo Piano)
Balconi:
1
Terrazzi:
1
Camere da letto:
2
Arredamento:
Assente
Mostra tutto
Prezzo Prezzo
€ 135.000
Rata mutuo Rata mutuo
€ 627 / mese
Spese annue Spese annue
€ 0
Proponi il tuo prezzoProponi il tuo prezzo

Classe Energetica

D
D
D
D
D
D
D
D
D
EP globale non rinnovabile:
164.92 kW h/m² anno
EP globale rinnovabile:
87.85 kW h/m² anno
EP invernale del fabbricato:
EP estiva del fabbricato:
Anno di costruzione:
1967
Riscaldamento:
Centralizzato
Tipo impianto:
A radiatori
Tipo alimentazione:
Metano

Prezzo ridotto di €1 (4%%)

Ti interessa visionare l'immobile?

Fissa un appuntamento  Fissa un appuntamento

Richiedi informazioni

Clicca su Leggi per aprire l'informativa
* Questi campi sono obbligatori

Calcola il tuo mutuo

Semplice e senza impegno
Anticipo

( % )
Mutuo

( % )

pochi semplici passi

inserisci i tuoi dati
Questionario completato
Grazie per aver richiesto un appuntamento senza impegno con un nostro Consulente del Credito e Assicurativo.

Hai inserito correttamente tutti i dati necessari e a breve riceverai una e-mail con un link da convalidare per inviare i tuoi dati.
Affiliato
Immobiliare La Casa Dei Sogni Sas
Via Papa Giovanni XXIII, 9/A 10092 Beinasco (TO)

Il nostro staff


  • Rosy Melania Tambè
    Affiliata

  • Francesca Gaia Brescia
    Collaboratrice

  • Daria De Luca
    Responsabile

  • Laura Fiorini
    Coordinatrice

  • Christian Giuliana
    Collaboratore

  • Maria Iolanda Perno
    Collaboratrice
Via Papa Giovanni XXIII, 9/A 10092 Beinasco (TO)
Zona: Borgaretto-Beinasco
Mostra su mappa
Affiliato
Immobiliare La Casa Dei Sogni Sas
Via Papa Giovanni XXIII, 9/A 10092 Beinasco (TO)

2026 Tecnocasa Franchising S.p.A. - P. IVA 08365160152 - Via Monte Bianco 60/A 20089 Rozzano (MI). Ogni agenzia ha un proprio titolare ed è autonoma. Privacy policy | Policy utilizzo | Cookie policy