Capannone in vendita

Beinasco, Via Padova
€ 730.000
20 locali 20 locali
2500 Mq 2500 Mq
5 bagni 5 bagni

Capannone in vendita

Beinasco, Via Padova

Descrizione annuncio

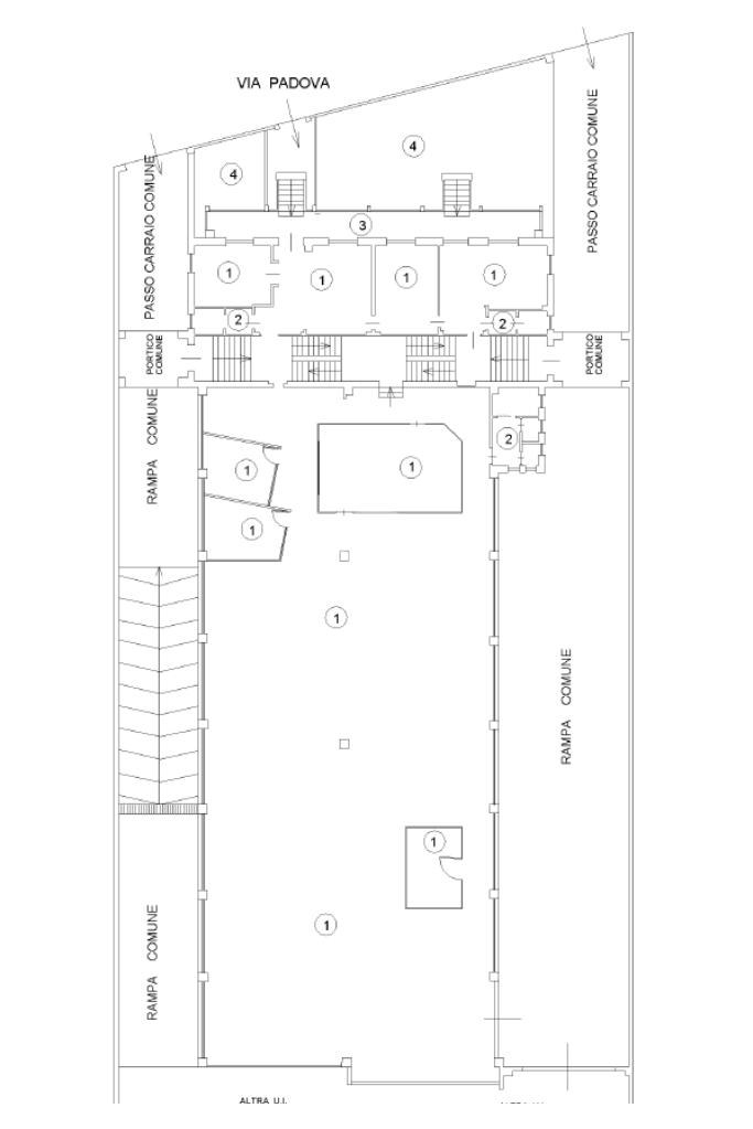
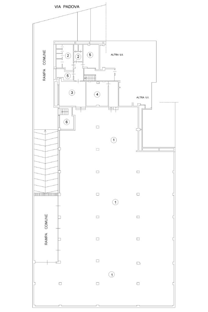
L’immobile è ubicato a Beinasco, nella zona industriale di Fornaci a pochissimi metri dell’ingresso della tangenziale e ai servizi. Il complesso ad uso commerciale/produttivo è composto da una palazzina uffici nella parte antistante e capannoni e locali di varie metrature da impiegare per varie attività produttive.


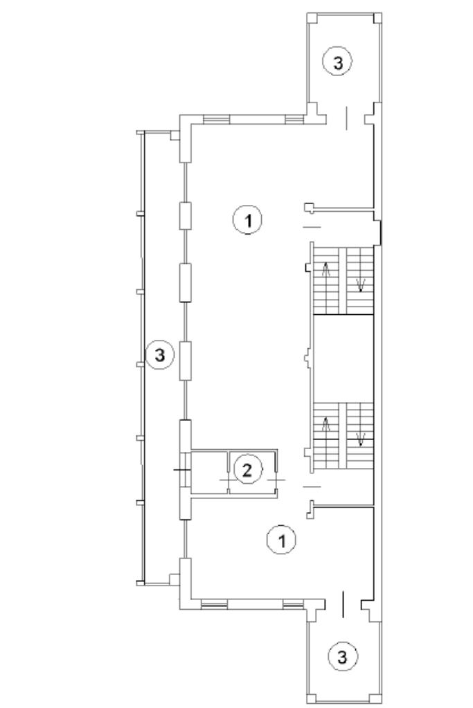
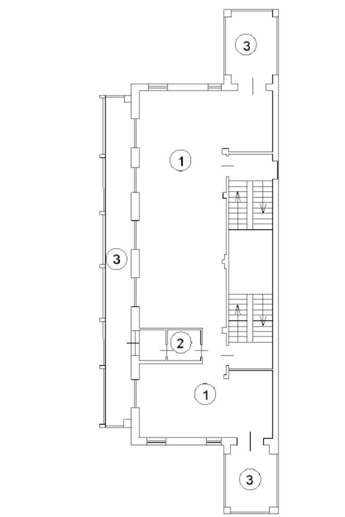
La palazzina con ingresso sia pedonale che carraio dalla via principale si sviluppa su tre piani di circa 150 Mq per ogni livello cui il primo e secondo piano adibiti ad uso ufficio e uno seminterrato di pari metratura con locali accessori che fungono da disimpegno tra i varie unità immobiliari. Ogni unità ha un suo ingresso indipendente dalle altre unità produttive.

Altra unità di uffici da circa 600 Mq openspace completamente ristrutturato con vetrate e pavimento galleggiante e soletta in cemento e tre uffici di cui due vetrati comodi per interfacciare la produzione con la dirigenza.

Capannone per uso produttivo di mq 1200 seminterrato con portoni carrai ampi rampa di accesso diretta. Terza unita è un magazzino di circa 200mq.

Nell’insieme l’intera struttura si presenta in ottime condizioni interne ed esterne. La facciata è stata completamente ristrutturata e internamente le finiture sono di pregio. Funzionale in ogni sua parte.
Gli uffici e gli altri locali sono dotati di servizi igienici, impiantistica elettrica funzionante, riscaldamento autonomo in ogni locale mentre l’impianto di raffrescamento è presente negli uffici. Il tetto a botte è nuovo, rifatto con coibentazione anche nelle altre unità produttive

Completano la soluzione varie aree scoperte da destinare a posti auto, aree di manovra e scarico merci totalmente interne e di pertinenza.
L'immobile è ideale per molteplici soluzioni commerciali per la vendita, produzione o esposizione.

Attualmente i locali sono locati con regolare contratto di affitto ad eccezione di uno dei locali adibito ad uffici.

Mostra tutto

Nelle vicinanze

Trasporto pubblico Trasporto pubblico
Settembrini Cap.
Settembrini Cap.
1,0 Km
Settembrini C.19
Settembrini C.19
1,1 Km
Ferrara
Ferrara
180 m
Fornaci
Fornaci
410 m
Ricariche auto elettriche Ricariche auto elettriche
Movi Mobility Village | EnelX
2,0 Km
I Viali Shopping Park Nichelino | EnelX
2,8 Km
Scuole Scuole
Scuola Primaria "Aldo Mei"
690 m
Scuole
730 m
Scuola Primaria "Gaetano Salvemini"
970 m
Scuola Secondaria "Cristoforo Colombo"
1,2 Km
Centro del Design
1,3 Km
Farmacia Farmacia
Farmacia Accademia
480 m
Équì
890 m
Ipercoop
900 m
Farmacia Comunale
950 m
Farmacia Pramollo
1,8 Km
Ospedali Ospedali
Presidio sanitario “Vittorio Valletta”
2,5 Km
Supermercati Supermercati
Ipercoop
870 m
EuroSpin
920 m
Lidl
1,0 Km
PrestoFresco
1,1 Km
DPiù
1,1 Km
Negozi Negozi
Globo
970 m
Il Club delle Donne
1,2 Km
Negozi
1,9 Km
Backwerk
2,1 Km
Carrefour Express
2,4 Km
Bar Bar
Caffè Le Fornaci
490 m
Bar
800 m
L'officina della pasta
1,5 Km
l'alveare bar città
1,9 Km
Al Diciannove B
2,7 Km
Ristoranti Ristoranti
La Terrazza di Tommasiello
490 m
Da Frasi
520 m
Lentini's
900 m
Casa del Re
960 m
Cascina Duc
1,3 Km
Mostra tutto

Caratteristiche

Rif.:
61183418
Piano:
Su più livelli di 3
Totale piani:
3
Condizionamento:
Autonomo
Ascensore:
No
Riscaldamento:
Autonomo
Mostra tutto
Prezzo Prezzo
€ 730.000
Rata mutuo Rata mutuo
€ 3.388 / mese
Spese annue Spese annue
€ 0
Proponi il tuo prezzoProponi il tuo prezzo

Altre caratteristiche

Descrizione dei locali
Bagno Con Finestra

Classe Energetica

Questo immobile è esente da classe energetica
Anno di costruzione:
1960
Riscaldamento:
Autonomo
Tipo impianto:
A radiatori
Tipo alimentazione:
GPL

Ti interessa visionare l'immobile?

Fissa un appuntamento  Fissa un appuntamento

Richiedi informazioni

Clicca su Leggi per aprire l'informativa
* Questi campi sono obbligatori

Calcola il tuo mutuo

Semplice e senza impegno
Anticipo

( % )
Mutuo

( % )

pochi semplici passi

inserisci i tuoi dati
Questionario completato
Grazie per aver richiesto un appuntamento senza impegno con un nostro Consulente del Credito e Assicurativo.

Hai inserito correttamente tutti i dati necessari e a breve riceverai una e-mail con un link da convalidare per inviare i tuoi dati.
Affiliato
Immobiliare La Casa Dei Sogni Sas
Via Papa Giovanni XXIII, 9/A 10092 Beinasco (TO)

Il nostro staff


  • Rosy Melania Tambè
    Affiliata

  • Francesca Gaia Brescia
    Collaboratrice

  • Daria De Luca
    Responsabile

  • Laura Fiorini
    Coordinatrice

  • Christian Giuliana
    Collaboratore

  • Maria Iolanda Perno
    Collaboratrice
Via Papa Giovanni XXIII, 9/A 10092 Beinasco (TO)
Zona: Borgaretto-Beinasco
Mostra su mappa
Affiliato
Immobiliare La Casa Dei Sogni Sas
Via Papa Giovanni XXIII, 9/A 10092 Beinasco (TO)

2026 Tecnocasa Franchising S.p.A. - P. IVA 08365160152 - Via Monte Bianco 60/A 20089 Rozzano (MI). Ogni agenzia ha un proprio titolare ed è autonoma. Privacy policy | Policy utilizzo | Cookie policy