Casa semindipendente in vendita

Beinasco, Strada Torino
€ 550.000
7 locali 7 locali
300 Mq 300 Mq
4 bagni 4 bagni

Casa semindipendente in vendita

Beinasco, Strada Torino

Descrizione annuncio

L'immobile è sito in Beinasco precisamente in zona Fornaci comoda a tutti i servizi tra cui il centro commerciale 'Le Fornaci', l'università di infermieristica, il nodo autostradale e le fermate dei bus per collegamenti principali su Torino e Orbassano.

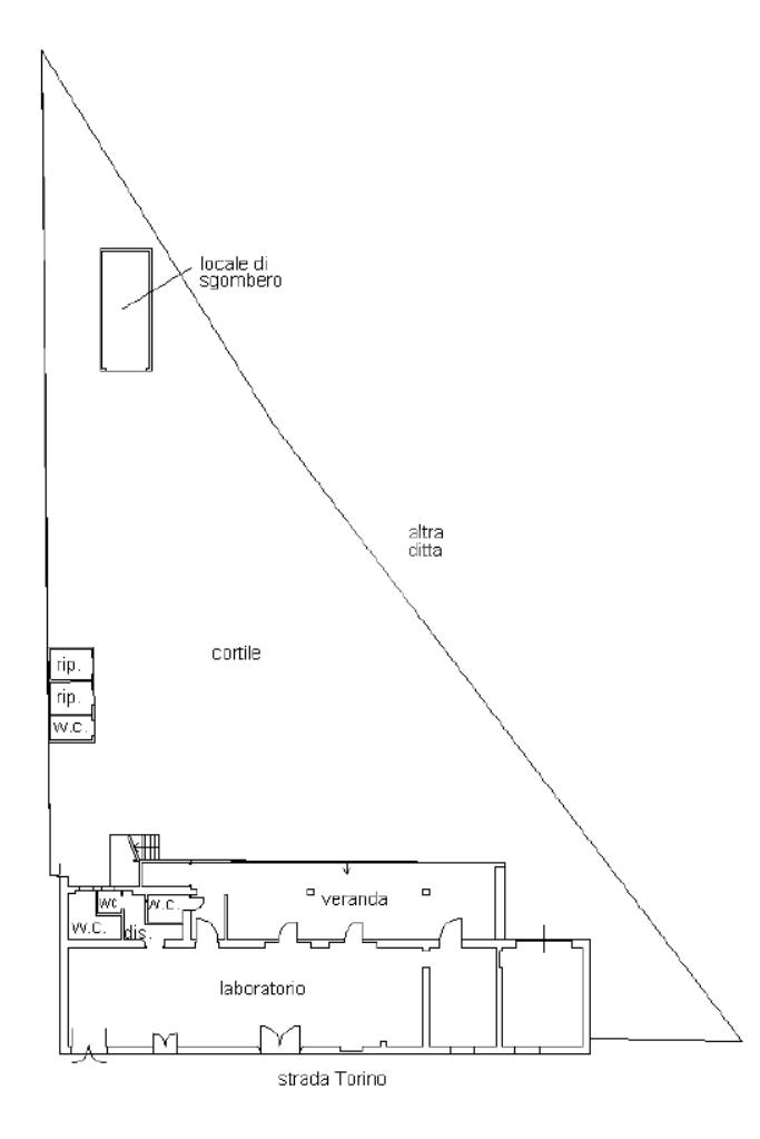
Dall'ingresso carraio si accede al cortile di proprietà di circa 800 mq ove si trova la casa che si sviluppa su tre livelli e l'ampio cortile ove sono presenti varie pertinenze tra garage e magazzini da poter utilizzare come autorimesse o come locale per piccola attività.

L'abitazione principale è al piano primo al quale si accede attraverso un'ampia scala esterna rivestita in granito che ci porta su un terrazzino che fa da cornice a tutti gli ambienti ed è in parte coperto per ricoprire un forno a legna ideale per momenti di svago e relax in ogni stagione. Dalla porta d'ingresso si entra in un salone doppio dotato di finestre che lo rendono luminoso e accogliente riscaldato da una stufa a pellet che d'inverno rende l'ambiente caldo e confortevole. Vi è anche la presenza di un bagno completo finestrato con doccia, utile per la zona giorno e per gli ospiti. Accanto al salone vi è una cucina abitabile che può accogliere una cucina con ampi piani di lavoro e un tavolo con sei sedie. Dal disimpegno si accede a tutta la zona notte composta da tre camere da letto ed un secondo bagno completo e finestrato. La camera patronale di ampie dimensioni può ospitare un arredo completo di armadio multi stagioni, il letto matrimoniale con comò e comodini. La stanza è dotata di doppia esposizione: una finestra sulla facciata principale e una porta finestra sul terrazzo. Le altre due camere da letto sono ottime per ospitare un arredo per ragazzi e si affacciano sul terrazzino. Gli infissi sono tutti in alluminio con vasistas. Sono stati istallati climatizzatori con split per ogni ambiente.
Al piano terra si sviluppa su tutta la superficie un locale ad uso commerciale fornito di impianti e servizi per poter avviare una piccola attività ma c'è la possibilità di destinare il locale ad uso abitativo con eventuale richiesta di cambio di destinazione d'uso creando così un altro appartamento.

Al piano interrato si trova una bellissima taverna con volte ad arco di mattoni a vista, camino a legna e un angolo cucina per poter organizzare feste e momenti di aggregazione. Un secondo ambiente è attualmente utilizzato come utile cantina per poter deporre provviste e scorte di vini in quanto ambiente fresco e ben areato.
All'interno del cortile si trovano altri locali con diverse destinazioni d'uso tra cui il locale con la caldaia a metano che scalda tutto lo stabile e un servizio igienico.

Un altro locale è un piccolo basso fabbricato di circa 50 mq che può essere destinato come ricovero auto o piccola officina.

Mostra tutto

Nelle vicinanze

Trasporto pubblico Trasporto pubblico
Settembrini Cap.
Settembrini Cap.
1,6 Km
Settembrini C.19
Settembrini C.19
1,7 Km
VIII Marzo Capolinea
VIII Marzo Capolinea
320 m
Mirafiori
Mirafiori
490 m
Ricariche auto elettriche Ricariche auto elettriche
Movi Mobility Village | EnelX
2,1 Km
Scuole Scuole
Scuole
320 m
Scuola Primaria "Gaetano Salvemini"
1,3 Km
CFP
1,8 Km
Centro del Design
1,9 Km
Università di Torino - Scienze MFN e Farmacia
1,9 Km
Farmacia Farmacia
Farmacia Accademia
180 m
Équì
350 m
Farmacia
1,2 Km
Farmacia Comunale
1,4 Km
Farmacia Pramollo
2,3 Km
Supermercati Supermercati
Lidl
450 m
Banco Fresco
580 m
EuroSpin
1,5 Km
DPiù
1,5 Km
PrestoFresco
1,5 Km
Negozi Negozi
Globo
420 m
Negozi
2,4 Km
Carrefour Express
2,4 Km
Mamma Morena
2,6 Km
Backwerk
2,6 Km
Bar Bar
Caffè Le Fornaci
170 m
Bar
1,2 Km
l'alveare bar città
2,5 Km
Ristoranti Ristoranti
La Terrazza di Tommasiello
120 m
Da Frasi
270 m
L'angolo partenopeo
1,2 Km
Lentini's
1,5 Km
Cascina Duc
1,5 Km
Mostra tutto

Caratteristiche

Rif.:
61207471
Piano:
Su più livelli di 2
Totale piani:
2
Box:
1
Balconi:
3
Terrazzi:
1
Mostra tutto
Prezzo Prezzo
€ 550.000
Rata mutuo Rata mutuo
€ 2.606 / mese
Spese annue Spese annue
€ 0
Proponi il tuo prezzoProponi il tuo prezzo

Classe Energetica

F
F
F
F
F
F
F
F
F
EP globale non rinnovabile:
54.75 kW h/m² anno
EP globale rinnovabile:
0.78 kW h/m² anno
EP invernale del fabbricato:
EP estiva del fabbricato:
Anno di costruzione:
1950
Riscaldamento:
Autonomo
Tipo impianto:
A radiatori
Tipo alimentazione:
Metano

Ti interessa visionare l'immobile?

Fissa un appuntamento  Fissa un appuntamento

Richiedi informazioni

Clicca su Leggi per aprire l'informativa
* Questi campi sono obbligatori

Calcola il tuo mutuo

Semplice e senza impegno
Anticipo

( % )
Mutuo

( % )

pochi semplici passi

inserisci i tuoi dati
Questionario completato
Grazie per aver richiesto un appuntamento senza impegno con un nostro Consulente del Credito e Assicurativo.

Hai inserito correttamente tutti i dati necessari e a breve riceverai una e-mail con un link da convalidare per inviare i tuoi dati.
Affiliato
Immobiliare La Casa Dei Sogni Sas
Via Papa Giovanni XXIII, 9/A 10092 Beinasco (TO)

Il nostro staff


  • Rosy Melania Tambè
    Affiliata

  • Francesca Gaia Brescia
    Collaboratrice

  • Daria De Luca
    Responsabile

  • Laura Fiorini
    Coordinatrice

  • Christian Giuliana
    Collaboratore

  • Maria Iolanda Perno
    Collaboratrice
Via Papa Giovanni XXIII, 9/A 10092 Beinasco (TO)
Zona: Borgaretto-Beinasco
Mostra su mappa
Affiliato
Immobiliare La Casa Dei Sogni Sas
Via Papa Giovanni XXIII, 9/A 10092 Beinasco (TO)

2026 Tecnocasa Franchising S.p.A. - P. IVA 08365160152 - Via Monte Bianco 60/A 20089 Rozzano (MI). Ogni agenzia ha un proprio titolare ed è autonoma. Privacy policy | Policy utilizzo | Cookie policy